1. SITUATION INITALE
1.1 Population
L’hôpital doit être construit à Terre Jaune (région située à la périphérie de la capitale Kinshasa), car il s’agit d’une région particulièrement pauvre. Pour des raisons financières, les femmes enceintes ne se rendent pas aux contrôles prénataux et les enfants malades sont souvent amenés beaucoup trop tard dans les établissements médicaux. Le taux de mortalité infantile est donc très élevé. Nous voulons lutter contre cela, car chaque vie est incroyablement précieuse !
1.2 Pourquoi un hôpital missionnaire?
en cours
2. DESCRIPTION DU PROJET
1.2 De quoi s’agit-il?
- Achat d’un terrain
- Construction d’un nouvel hôpital missionnaire : centre de chirurgie et d’obstétrique
2.2 Objectifs du projet
h
2.3 Coûts du projet
- Achat du terrain : 25 000 USD + frais administratifs (enregistrement, courtier)
- Clôture : environ 15 000 CHF
- Fontaine:
- Construction du bâtiment hospitalier : environ 750 000 CHF
- Frais supplémentaires divers
- Total : en cours de détermination
3. APPLICATION DU PROJET
3.1 Le terrain
Grâce à un prêt sans intérêt, un terrain de 60 m x 20 m a pu être acheté dès la fin 2023. Ces coûts ont été couverts par des dons en décembre 2024 et le terrain appartient désormais à GRADI.


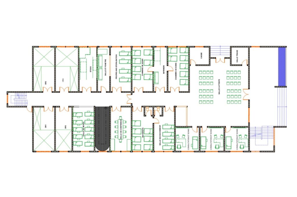
3.2 Le plan de construction

Nous aimerions construire un hôpital de trois étages. Le rez-de-chaussée abritera trois salles d’opération, l’unité de soins intensifs, les urgences, la maternité et les salles de consultation externe. Au deuxième étage se trouveront d’autres lits d’hospitalisation pour les patients stables ainsi que le laboratoire. Le troisième étage accueillera la pharmacie et disposera de suffisamment d’espace pour des bureaux et des salles de garde.
Nous avons dessiné un plan de construction correspondant à nos souhaits et l’avons remis à l’architecte. Il a ensuite élaboré le plan de construction définitif à partir de celui-ci.



ghj
3.3 Visualisation
sdsd









3.4 Clôture









hjgh
3.5 Fontaine




hhj
3.6 La construction de l’hôpital
Dès que la construction commencera, des photos actuelles seront publiées ici.
